Prodaja, Kuća, Sopot, Kosmaj, Rogača |
|
| Kataloški broj | 8824 |
| Grad | Beograd |
| Opština | Sopot |
| Lokacija | Kosmaj |
| Ulica | Rogača |
| Cena | 355.000 € |
| Kvadratura | 205 m2 |
| Površina placa | 2000 m2 |
| Tip nekretnine | Kuća |
| Dokumentacija | Predat na uknjižbu |
| Nameštenost | Prazan |
| Grejanje | Podno |
| Lift | Ne |
| Terasa / Lođa | Da / Ne |
| Garaža / Parking | Da / Da |
| Stanje nekretnine | Lux |
| Tip objekta | Novogradnja |
| Nazad Štampaj Preuzmite PDF | |
OPIS
Savremena kuća-USELJIVA 1. juna 2026- na premium lokaciji – nadomak vrha Kosmaja i u blizini restorana La Montanja
Velika prednost je pozicija-nalazi se na visoravni uz sam obod Kosmaja. Otvoren i garantovano nesmetan pogled sa obe strane na planinu, borove i prirodu!
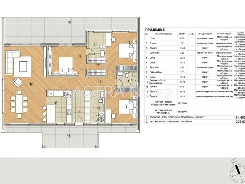
170m² neto površine na placu od 20 ari
• Tri spavaće sobe, prostran dnevni boravak sa trpezarijom i kuhinjom, dve terase, garderober, dva kupatila i toalet (205 bruto površine )
Gradnja visokog kvaliteta, savremeni materijali i pažljivo planirana funkcionalnost prostorija.
Bazen 12x4,5m2
Okružena borovima
Otvoren pogled i mirna lokacija
Privatnost, kvalitet i dugoročna vrednost na jednoj od najtraženijih lokacija.
Cena: 355.000 € + pdv 10%
Informacije & razgledanje: 063 224 106
Ag. Provizija 2%, po realizaciji








